Selamat datang di Ahsanu Studio
Realisasikan impian anda dengan visualisasi berkualitas, kami terus
berusaha memberikan yang terbaik.
Karena impian Anda adalah komitmen Kami
Meet The Team
Andhika Ridwan

Muhammad Wildan Wiguna

memberikan visual realistis untuk Anda
Abdul Hakiem Kamil

“You dream it, we build it”
– Ahsanu Studio –
PROJECT HIGHLIGHT

HYBRID HOUSE
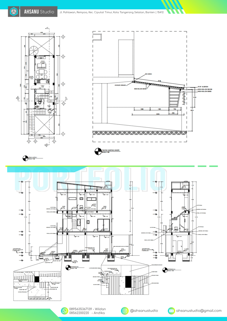
Proyek rumah 3 lantai dari mulai desain hingga pelaksanaan yang berlokasi di Pulo Gadung, Jakarta Timur. Dengan pertimbangan lebar bangunan yang terbatas dan kebutuhan untuk 3 lantai, kami juga membuat perhitungan struktur dengan menggunakan software ETABS.
Dibangun dengan sistem dinding pracetak dengan struktur konvensional yang di mix bersamaan menjadikan kesan “Hybrid” alias persilangan antara kedua teknologi tersebut. Maka dari itu kami menyebutnya “Hybrid House”
Dibangun diatas lahan seluas 60m2 dan lebar bangunan hanya 3m serta kebutuhan ruangan yang banyak membuat kami harus cermat dalam membuat layout ruangan ketika mendesain. Dinding pracetak juga dipilih karena menghemat space karena hanya memiliki tebal 5cm.



REDWHITESTAR – PRIMAJASA
Proyek desain dan build interior tenant ticketing Redwhitestar Primajasa di gedung Transhub Dukuh Atas. Pekerjaan dilakukan selama 8 pekan dari mulai produksi hingga finishing. Cakupan pekerjaan secara garis besar yaitu:
- Pembuatan dinding partisi teanant
- Produksi dan pemasangan kaca shopfront
- Ducting AC
- Produksi furniture dan sofa
- Lantai SPC
- Produksi dan pemasangan signage

INTERIOR YUTHICA BSD
Proyek desain dan renovasi interior di perumahan Yuthica BSD. Pekerjaan dilakukan selama 2 minggu produksi, dan 12 hari instalasi. Cakupan pekerjaan secara garis besar yaitu:
- Pemasangan lapis lantai SPC
- Ubahan plafond menjadi drop ceiling + LED strip
- Produksi furniture fully furnished
- Perapihan taman belakang

Berdiri sejak tahun 2020, Ahsanu Studio adalah Konsultan – Kontraktor yang berkomitmen memberikan yang terbaik. Kami juga menyajikan inovasi dalam membangun rumah impian Anda. Mulai dari jasa desain, IMB hingga bangun baru dan renovasi tersedia untuk Anda.
Jasa Konsultan Untuk Anda
- FREE Konsultasi
- FREE Survey (Jabodetabek)
- Jasa Gambar IMB
- Jasa Gambar 3D Exterior, Interior & Furniture
- Jasa Manajemen – Pengawasan Proyek Pembangunan
- Jasa Gambal DED (Detailed Engineering Drawing)
- Visual 3D Realistis dan Berkualitas Tinggi
- Estimasi Biaya (RAB)
Desain Portofolio
Jasa Kontraktor Untuk Anda
- Jasa Renovasi Rumah, Carport, Dapur, Toilet, Dll
- Jasa Bangun Baru
- Build Interior, Furniture, Backdrop, Dll
- Stand Pameran, Showroom, Dll
- Pintu-Jendela Aluminium/Kayu
- Pembuatan Kanopi, Pintu Gerbang, Pagar Besi, Dll
- Jasa Bor Sumur, Spesialis Pompa & Plumbing
- Ducting dan Spesialis AC
Dokumentasi Hasil Proyek
Proyek Suzan’s Coffee


Proyek Musholla Suzan’s Coffee


Proyek Renovasi Dapur Pondok Aren


Proyek Build Hybrid House


Hubungi Kami
Jangan ragu untuk menghubungi kami, kami akan memberikan pelayanan terbaik kepada Anda. Tanya dan konsultasikan hal apapun tentang kebutuhan atau permasalahan bangunan Anda, kami akan memberikan solusi terbaik untuk terwujudnya impian Anda





























